
BECAUSE FLORIDA AND THE FLORIDA KEYS HAVE SO MANY SENSITIVE ENVIRONMENTAL AREAS, BUILDING OR RENOVATING A HOME, COMMERCIAL SPACE OR DEVELOPMENT HERE IS UNLIKE ANY OTHER PLACE IN THE UNITED STATES. IT IS ESSENTIAL THAT AN ARCHITECT HAVE A THOROUGH UNDERSTANDING OF BUILDING CODES AND THE EXTENSIVE ENVIRONMENTAL REGULATIONS. COMPASS ARCHITECTURE & DESIGN HAS THE KNOWLEDGE & EXPERIENCE TO NAVIGATE THIS REGULATORY REGIME.
WE BELIEVE IN DESIGN THAT REFLECTS THE DESIRES OF OUR CLIENTS AND HARMONIZES WITH THE SURROUNDING LANDSCAPE. EVERY PROJECT BEGINS WITH LISTENING - TO OUR CLIENTS, THE SITE, AND THE LARGER CONTEXT. FROM CONCEPT TO COMPLETION, OUR PROCESS IS CLEAR, COLLABORATIVE, AND TAILORED TO EACH UNIQUE PROJECT.

COMPASS ARCHITECTURE & DESIGN IS A FULL-SERVICE ARCHITECTURE & DESIGN STUDIO BASED IN TAVERNIER IN THE FLORIDA KEYS. WE SPECIALIZE IN NEW & RENOVATED RESIDENCES WITH AN EMPHASIS ON SUSTAINABILITY, CRAFTSMANSHIP, & ENDURING VALUE. WE ARE CURRENTLY LICENSED IN FL (AR100676) & SC (11991).
AT COMPASS ARCHITECTURE & DESIGN, WE CREATE ARCHITECTURE WITH MEANING. OUR DESIGNS ARE BORN FROM COLLABORATION, GROUNDED IN CONTEXT, AND SHAPED BY THE NEEDS OF THE PEOPLE WE SERVE. WE AIM TO ELEVATE EVERYDAY EXPERIENCE THROUGH DESIGN THAT IS BOTH FUNCTIONAL AND BEAUTIFUL.

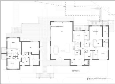
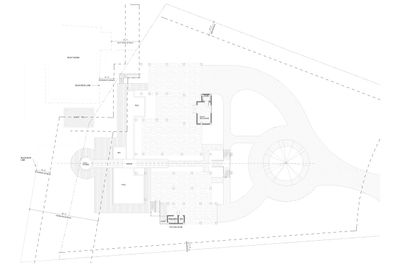
From ground-up homes to renovations, we design spaces that reflect your lifestyle and values. Our team of experts will work with you to create innovative and functional designs that meet your specific needs. From concept to completion, we will be with you every step of the way.
Energy-efficient, environmentally conscious solutions built to last. We tailor each project to the people who live, work, and interact with the space.
Integrated, cohesive interiors that complement the architecture and enhance daily living.
Big-Picture thinking to help clients visualize, plan, and assess project potential.

THE FOUNDER & PRINCIPAL ARCHITECT OF COMPASS ARCHITECTURE & DESIGN IS SARAH GIRARD, NCARB, LEED AP AR100676. AFTER EARNING A BACHELORS DEGREE IN INTERIOR DESIGN FROM SALEM COLLEGE IN WINSTON-SALEM, NC, SARAH WORKED FOR 2 YEARS FOR A COMMERCIAL INTERIOR DESIGN FIRM. SUBSEQUENTLY, SARAH EARNED HER MASTERS DEGREE IN ARCHITECTURE FROM THE UNIVERSITY OF MIAMI, IN CORAL GABLES, FL. AFTER WORKING FOR A LARGE, WELL-KNOWN DESIGN-BUILD FIRM IN THE MIDDLE KEYS, SARAH FOUNDED COMPASS ARCHITECTURE & DESIGN IN 2021.
SARAH ENJOYS COLLABORATING WITH CLIENTS AND WORKING CLOSELY WITH CONTRACTORS TO ENSURE AN EXQUISITE FINAL PRODUCT.
We use cookies to analyze website traffic and optimize your website experience. By accepting our use of cookies, your data will be aggregated with all other user data.